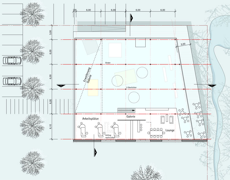
Ausstellungsgebäude moll Systemmöbel GmbH

Home          Vita          Projekte          Kontakt